カフェ・パン屋・ケーキ屋 見積もり提案事例
1 / 5 ページ(全46件)
1 / 5 ページ(全46件)
関連リンク
店舗内装工事の無料見積もり
24時間365日受付|いつでも見積もりを申し込めます
<完全無料・全国対応>
- 飲食店・美容室・クリニック・オフィスの実績多数
- 現地調査・見積もり・プラン提案まで完全無料
- 最大3社~5社の見積もり・提案を比較できます
- あなたの近くの業者が見積もり(現地調査も無料)
- ご紹介した業者に決めても手数料は不要です
手数料ゼロ/しつこい営業は一切なし
最新の見積もり依頼
初めてのお客様もご安心いただけますように、当サイトの「無料見積もり申込」の状況をご覧いただけます。(更新日時:2026年2月27日 18時36分)
- 見積もり依頼の一覧はこちら
- 2026年2月27日 神奈川県横浜市 オフィス
- 2026年2月27日 愛知県名古屋市 カフェバー
- 2026年2月27日 兵庫県西宮市 ヘアカラー
- 2026年2月26日 埼玉県さいたま市 美容サロン
- 2026年2月26日 東京都西東京市 美容室
- 2026年2月26日 大阪府箕面市 美容室
- 2026年2月26日 大阪府大阪市 ネイルサロン
- 2026年2月26日 東京都 カフェ
- 2026年2月25日 岡山県岡山市 オフィス
- 2026年2月25日 埼玉県川口市 ビストロ


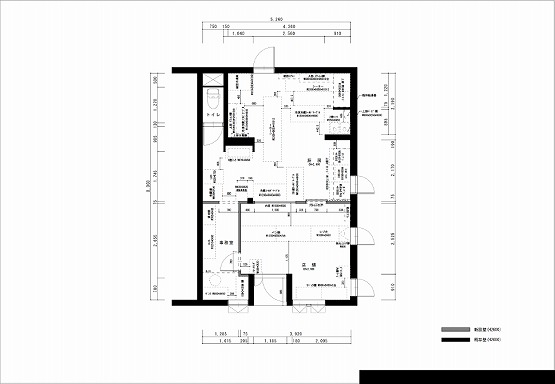
![パン屋[滋賀/草津市]デザイン1](https://tenpo-naisoh.com/estimate/20260122-bakery-cg1.jpg)
![パン屋[滋賀/草津市]デザイン2](https://tenpo-naisoh.com/estimate/20260122-bakery-cg2.jpg)
![パン屋[滋賀/草津市]見積書](https://tenpo-naisoh.com/estimate/20260122-bakery.jpg)
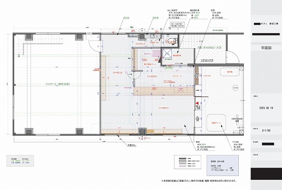
![カフェ[千葉/松戸市]プラン](https://tenpo-naisoh.com/estimate/20251130-cafe-plan.jpg)
![カフェ[千葉/松戸市]見積書](https://tenpo-naisoh.com/estimate/20251130-cafe.jpg)
![カフェ[大阪/西区]プラン](https://tenpo-naisoh.com/estimate/20251020-cafe-plan.jpg)
![カフェ[大阪/西区]見積書](https://tenpo-naisoh.com/estimate/20251020-cafe.jpg)
![パン屋[札幌/東区]デザイン](https://tenpo-naisoh.com/estimate/20250916-croissant-cg.jpg)
![パン屋[札幌/東区]プラン](https://tenpo-naisoh.com/estimate/20250916-croissant-plan.jpg)
![パン屋[札幌/東区]見積書](https://tenpo-naisoh.com/estimate/20250916-croissant.jpg)
![カフェ[堺/西区]プラン](https://tenpo-naisoh.com/estimate/20250901-cafe-plan.jpg)
![カフェ[堺/西区]見積書](https://tenpo-naisoh.com/estimate/20250901-cafe.jpg)
![パンケーキ[埼玉/上尾市]プラン](https://tenpo-naisoh.com/estimate/20250331-pancake-plan.jpg)
![パンケーキ[埼玉/上尾市]見積書](https://tenpo-naisoh.com/estimate/20250331-pancake.jpg)
![コンセプトカフェ[東京/新宿区]プラン](https://tenpo-naisoh.com/estimate/20250320-concafe-plan.jpg)
![コンセプトカフェ[東京/新宿区]見積書](https://tenpo-naisoh.com/estimate/20250320-concafe.jpg)

![カフェ[東京/渋谷区]見積書](https://tenpo-naisoh.com/estimate/20241114-cafe.jpg)
![カフェ・物販[東京/世田谷区]プラン](https://tenpo-naisoh.com/estimate/20241015-cafe-plan.jpg)
![カフェ・物販[東京/世田谷区]見積書](https://tenpo-naisoh.com/estimate/20241015-cafe.jpg)

